Mehrzweckhalle Rannungen

VgV-Verfahren: Generalinstandsetzung und Erweiterung

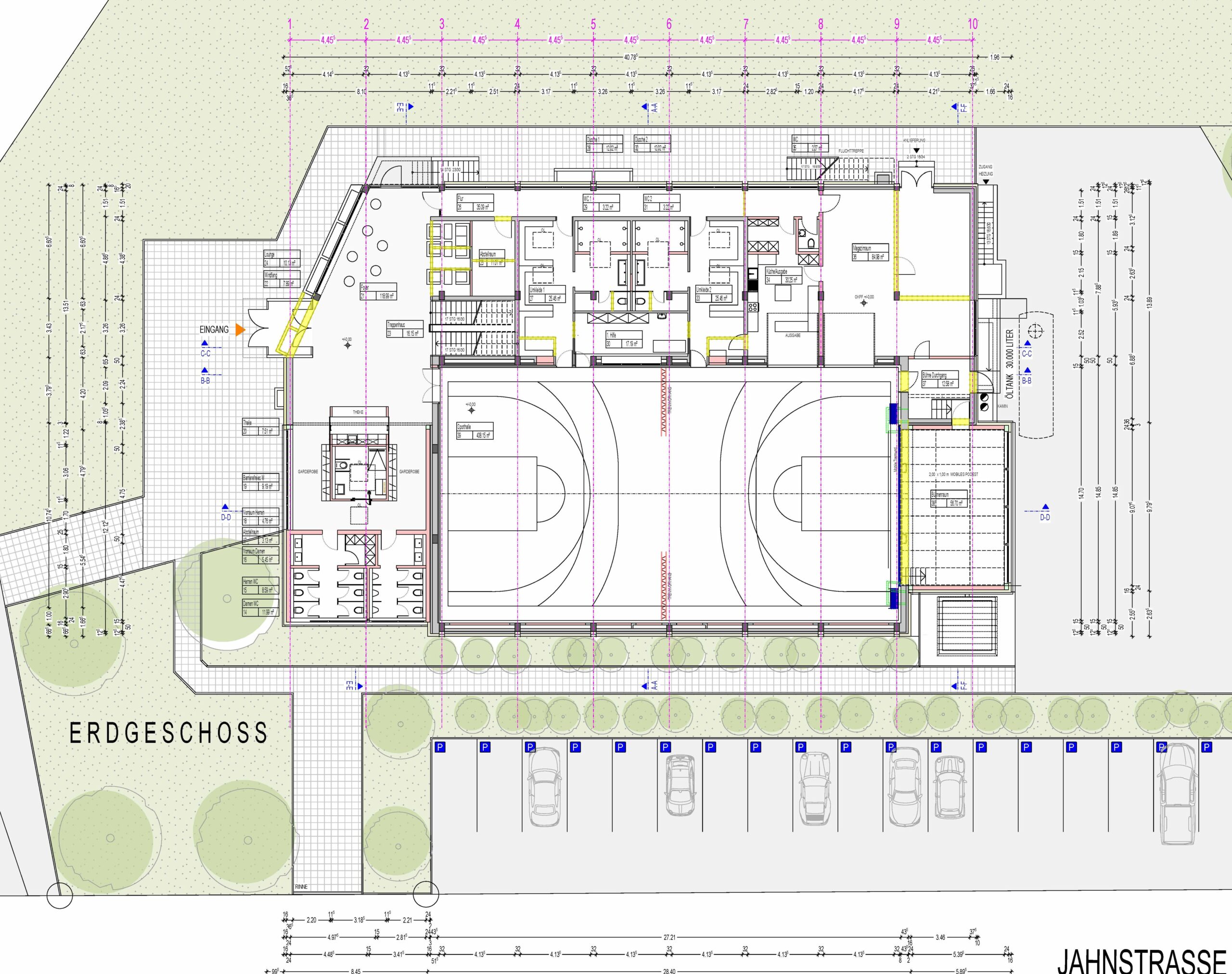
Die Mehrzweckhalle ist ein zentraler Ort im sozialen und kulturellen Leben der Gemeinde Rannungen. Die Halle wird vielfältig genutzt, sowohl im sportlichen, kulturellen, gesellschaftlichen als auch im privaten Bereich. Hauptnutzer sind der örtliche Turn- und Sportverein Rannungen sowie der Musikverein Rannungen.

Zusätzlich zu den Vereinsaktivitäten finden Konzerte, Prunksitzungen, Tanzveranstaltungen und weitere Events statt. Die Halle wird auch von örtlichen und regionalen Institutionen für Versammlungen genutzt, darunter Feuerwehr, Musikverbände und die Raiffeisenbank. Die Gemeinde verwendet die Halle für Bürgerversammlungen, Informationsveranstaltungen, Wahlen und Ferienprogramme.

Es entsteht ein Anbau an die Mehrzweckhalle mit WC-Anlagen und einem neuen großzügig gestaltetem Foyer. Im Zuge der Generalinstandsetzung wird die Küche und Lagerräume umstrukturiert. Auch wird ein neuer Bühnentrakt realisiert. Es wurden neue Fluchtwege und ein neues Brandschutzkonzept erarbeitet.

Das Gebäude befindet sich aktuell noch im Bau.

Projekt-/Leistungsbeschreibung

– Generalplanung
– Architekturplanung
– Freiflächenplanung
– Erstellung der Förderunterlagen
– Aspestsanierung
– Schadschoffanalytik
– Abbruchmaßnahme
– Möblierung
– Küchenplanung

 

Brutto-Grundfläche (BGF)          1.682 m²

Brutto-Rauminhalt (BRI)           7.843 m²

 

Baubeginn                                     20. Februar 2023

Fertigstellung                               Ende 2024

Projektbilder

Alle Projekte